REQUEST A TOUR If you would like to see this home without being there in person, select the "Virtual Tour" option and your agent will contact you to discuss available opportunities.
In-PersonVirtual Tour

Listed by Jill Guthof GUTH & ASSOCIATES,LLC
-
UPDATED:
Key Details
Property Type Commercial
Sub Type Industrial
Listing Status Active
Purchase Type For Rent
MLS Listing ID 12345947
Year Built 2025
Property Sub-Type Industrial
Property Description
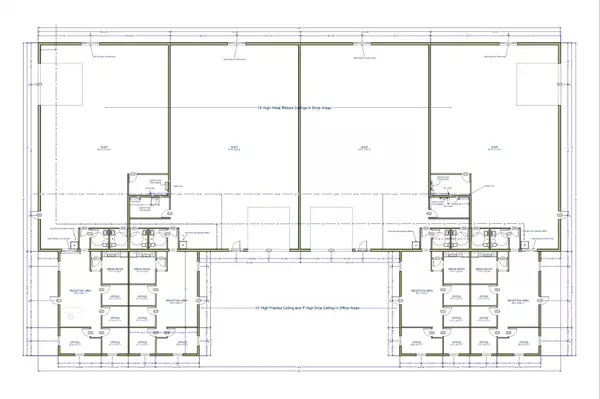
Brand New Industrial Flex Space | Available September 1, 2025 Total 20,320 SF | Flexible Bay Options Introducing an exceptional opportunity to lease brand new industrial space designed for today's growing businesses. This modern facility, available September 1, 2025, offers a total of 20,320 square feet, thoughtfully divided into four bays of 5,080 SF each - perfect for a wide range of commercial, light industrial, or warehouse uses. Each 5,080 SF Bay Includes: - 4,000 SF of heated warehouse/shop space - 1,080 SF of unfinished office or open work space - ready for your customization - Two private restrooms - One 16' overhead door for easy access - 20' clear ceiling height - with room for a mezzanine - Warehouse floor heating for year-round comfort - Fire sprinkler system for safety and code compliance - 5" reinforced concrete slab - ideal for heavy-duty equipment and operations - Modern design with clean lines and quality construction Whether you need one bay or the entire building, this property is tailored to support your business as it scales. Perfect for manufacturing, distribution, trades, or logistics operations seeking functional, high-quality space. Now pre-leasing - secure your spot before it's gone! Contact us today to schedule a tour or request more information!
Location
State IL
County Champaign
Zoning INDUS
Interior
Cooling Central Air
Flooring Concrete
Fireplace N
Exterior
View Y/N true
Building
Foundation Concrete Perimeter
Structure Type Steel Siding
Read Less Info

© 2025 Listings courtesy of MRED as distributed by MLS GRID. All Rights Reserved.
GET MORE INFORMATION




